Properties for Sale in Everton Park

powered by Open2view.com
SOLD

Adelaide
3
1
N/A
N/Asqm
N/Asqm
Adelaide
proudly marketed by
Harcourts Platinum
903m2 Corner Block in sought-after St Peters
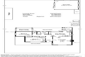
903m2 Corner Block in sought-after St Peters Auction: Saturday 25/5/2013 at 11am (unless sold prior) Contact Agent for Sales Guide Comfortable family home of 3 bedrooms (2 plus study) with potentially sub-dividable block (STCC) of 18.44m frontage to Harrow Rd and 48m to Eighth Avenue. Inside: * ducted evaporative A/C * combustion fire in lounge/dining * BIR's to 2 bedrooms * tenanted to 26/6/13 @ $710 p/ftn (possibility for extension while you seek council approvals) Outside: * flat corner block * double gate entrance off Eighth Avenue Location: * surrounded by $1m+ homes in tree-lined suburb * only 5 minutes to The City, The Parade, The Avenues shopping * walk to St Peters River Park (River Torrens) * convenient to prestigious schools such as St Peters & Prince Alfred Colleges * opposite Hackney Kindergarten * zoned for Adelaide High School, near East Adelaide Primary General Information: C/T: 5843/956 Council: Norwood, Payneham & St Peters Zoning: Residential 1 Council Rates: $1,887.08 pa SA Water: $313.08 pqtr ES Levy: $126.95 pa Land size: 903m2 approx Built: 1950 approx
Question
Upload by Erin Beare
Burnside-Norwood